






















Минский район Лугослободской с/с, п. Привольный, ул. Мира, 53/6
2500-7310 м² Общая площадь
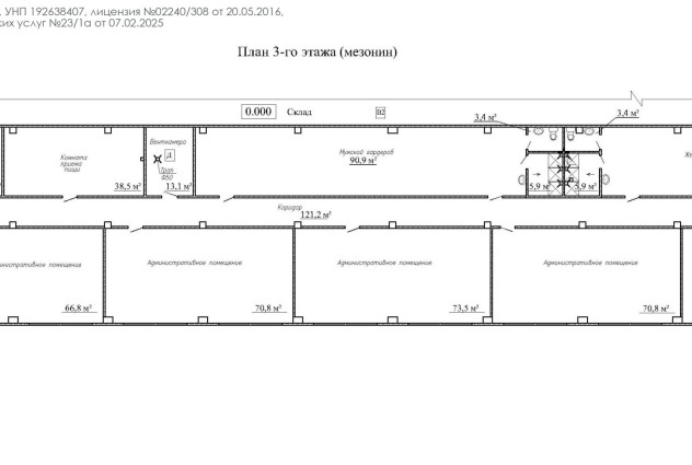
Предлагаем вашему вниманию складское помещение площадью 7310,1 кв. м, расположенное в торгово-логистическом комплексе “Домовой” по адресу: Минский р-н, Луговослободской с/с, п. Привольный, ул. Мира, 53/6.
Важно! Объект находится на стадии 3-й очереди строительства.
(срок ввода в эксплуатацию - ноябрь 2025 года).
Объект включает в себя:
Характеристики объекта:
Месторасположение:
Объект расположен в 15-ти километрах от МКАД (пуховичское направление). Удобный выезд на автомобильную дорогу М-1. В 2-х километрах находится АЗС “Белоруснефть” и “А-100”.
Арендатор не оплачивает услуги агентства!
Ставка аренды указана без учета НДС.
Звоните прямо сейчас!
Новые объекты на Ваш Email
Подпишитесь и получайте ссылки на новые объекты
Похожие объекты