Продается уютный дом в г. Марьина Горка.

112.3 м² Общая площадь

25 соток Площадь участка

1992 Год постройки

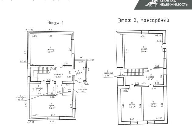
Продается уютный дом в г. Марьина Горка. Дом двухэтажный сруб, обложенный белым кирпичом 1992 года постройки. Общая площадь112,3 кв. м. На первом этаже веранда, прихожая, кухня, гостиная, санузел с душевой и котельная, есть место для гардероба. На втором этаже 3 просторные комнаты. Газ введен в дом, отопление от двухконтурного котла, но есть и котел на твердом топливе. Электричество 220, 380В, центральный водопровод, канализация местная, сан узел в доме и на улице. Интернет (оптоволокно), телевидение, телефон. Окна практически везде стеклопакет. Крыша шифер. Участок более 25 соток, ровной формы, огорожен со всех сторон забором. Есть плодовые деревья и кустарники, огород, место для отдыха и хоз. постройки. Есть гараж. Колодец. Тихое и спокойное место, хорошие соседи. В шаговой доступности – магазины, школа, детский сад. Хорошее транспортное сообщение (электрички, маршрутки, автобусы). Маршрутки регулярно ходят до Минска (ст.м. Могилевская). Удобный выезд на трассу М4.
Этот объект можно купить в кредит, подробности уточняйте у специалиста по недвижимости.    

Хотите продавать свою недвижимость так же эффективно? Узнайте подробнее о нашей услуге "Продавцу"

Новые объекты на Ваш Email

Подпишитесь и получайте ссылки на новые объекты

Похожие объекты

Фотография - Ваш будущий дом в д. Силичи.
191 100 р.

Ваш будущий дом в д. Силичи.

д. Силичи, ул. Центральная

Фотография - Коттедж в д. Заречье, 50 км от МКАД
210 500 р.

Коттедж в д. Заречье, 50 км от МКАД

д. Заречье, пер. Новый

Для обеспечения удобства пользователей сайта используются cookies

Принять Отклонить
Подробнее