Продаётся большой дом в Деревне Мозоли

Минская область д. Мозоли

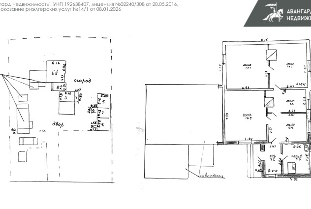
77.7 м² Общая площадь

25 соток Площадь участка

1982 Год постройки

Продаётся большой дом в Деревне Мозоли, Молоденченский район, Минская область. Дом из белого кирпича. Крыша– шифер. Отопление печное. Сан узел на улице. Газ баллон. Телефон. Телевидение. Дом разделён на две части. Площадь первой половины 49 кв. м. Состоит из 3-х жилых комнат, кухни и веранды.   Площадь второй половины 77.7 кв. м. Во второй половине 4 огромные комнаты, кухня, коридор. Есть возможность обустроить мансардный этаж.
На участке также находятся отличная баня, колодец, 4 гаража, погреб, летняя кухня, два сарая, огромный сад, участок для огорода.
Но главное преимущество этого предложения - прилегающий собственный участок в 100 соток. Он полностью огорожен, ухожен и утопает в зелени плодовых деревьев и кустарников.
Хорошие подъездные пути. Ходят автобусы до станции Уша, и автобус до г. п. Радошковичи.
Деревня расположена всего в 800 метрах от посёлка Чисть (840 метров), где есть все необходимое: школа, детский сад, магазины, поликлиника, дом культуры. Рядом находится деревня  Красное.
Этот объект можно купить в кредит, подробности уточняйте у специалиста по недвижимости.

Хотите продавать свою недвижимость так же эффективно? Узнайте подробнее о нашей услуге "Продавцу"

Новые объекты на Ваш Email

Подпишитесь и получайте ссылки на новые объекты

Похожие объекты

Фотография - Уютный кирпичный дом в г. Борисове.
115 800 р.

Уютный кирпичный дом в г. Борисове.

г. Борисов, пер. 4-й Залинейный

Фотография - Жилой дом в д.Нарейки 26 км от Минска
103 600 р.

Жилой дом в д.Нарейки 26 км от Минска

д. Нарейки, ул. Центральная

Фотография - Продается дом в центре Столбцов
102 000 р.

Продается дом в центре Столбцов

г. Столбцы, ул. Социалистическая

Фотография - Продается дом в а.г. Слобода
127 100 р.

Продается дом в а.г. Слобода

аг. Слобода, ул. Дорожная

Для обеспечения удобства пользователей сайта используются cookies

Принять Отклонить
Подробнее