






































Минский район п. Опытный, пер. Центральный
202.3 м² Общая площадь
4,6 сотка Площадь участка
2018 Год постройки
Представляем вашему вниманию современный дом у леса со своей неповторимой атмосферой!
Поселок Опытный Боровлянский с\с, 9км от МКАД. Асфальтированные подъездные пути.
Интерьер – эклектика в чистом виде - сочетает в себе антикварную составляющую и современный стиль. Дорогие антикварные предметы, такие как старинная мебель, пианино, люстры, двери, декоративные детали, сочетаются с современными предметами мебели, освещения и аксессуарами, создавай неповторимый ансамбль.
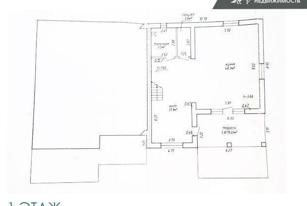
Дом построен в 2018 году. Общая площадь дома 202.3м2. Материал – блоки газосиликатные (40) и утеплитель (10). Фундамент – ж/б блоки. Есть подвал и чердак для хранения вещей. Крыша накрыта м/черепицей.
Участок 4.5 сот в частной собственности. Выполнен ландшафтный дизайн. Установлена подсветка участка, вымощены плиткой дорожки. Организовано паркоместо, дренаж. Есть бокс для хранения инвентаря, сезонных вещей, велосипедов и др.
На первом этаже располагается светлая просторная гостиная с кухонной зоной и панорамным остеклением. Высота потолков составляет 4.2м. Встроенная кухня с бытовой техникой Bosh. Теплые полы по всему периметру.
На второй этаж ведет лестница с остеклением из каленого стекла. Такие лестницы
подходят под любой интерьер, смотрятся стильно и элегантно, увеличивают пространство. Они очень прочны, безопасны и за ними легко ухаживать.
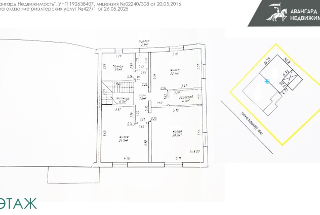
На втором уровне 3 жилые комнаты: спальня, детская с гардеробной зоной и гостевая комната. Раздельный санузел.
Дом оснащен всеми необходимыми коммуникациями: отопление на газу, центральный водопровод, оптоволокно, местная канализация (2 колодца по 3 кольца).
Продается со всем наполнением, мебелью и техникой - позволяет заехать и жить!
О достоинствах этого дома можно много рассказывать, но лучше все увидеть своими глазами!
Звоните прямо сейчас и приходите на просмотр! Покажем в удобное для вас время.
Этот объект можно купить в кредит, подробности уточняйте у специалиста по недвижимости.
Хотите продавать свою недвижимость так же эффективно? Узнайте подробнее о нашей услуге "Продавцу" |
Новые объекты на Ваш Email
Подпишитесь и получайте ссылки на новые объекты
Похожие объекты