Продается дом в районе Дрозды.

Центральный район Минск, ул. Вилейская

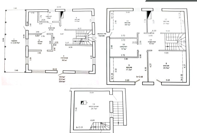
213.3 м² Общая площадь

13,4 сотка Площадь участка

2009 Год постройки

Продаётся жилой дом в тихом районе Минска. Дом расположен на спокойной не проездной улице в одном из лучших районов города.

Планировка:

  • Гаражи, мастерские, комнаты для гостей
  • Первый этаж: просторная гостиная-кухня, санузел, коридор, кладовая
  • Второй этаж мансардный: 3 спальни, санузел
  • Пристройка: отдельные помещения с собственным входом, санузлом и кухней (фактически отдельные квартиры)

Коммуникации и удобства:

  • Газовое отопление
  • Центральные водопровод и канализация (не требуют обслуживания)
  • Оптоволоконный интернет

Территория:

  • 3 парковочных места на участке
  • Ворота распашные
  • Дополнительные парковочные места перед домом. Тихое место с высокоразвитой инфраструктурой.

Этот объект можно купить в кредит, подробности уточняйте у специалиста по недвижимости.

Хотите продавать свою недвижимость так же эффективно? Узнайте подробнее о нашей услуге "Продавцу"

Новые объекты на Ваш Email

Подпишитесь и получайте ссылки на новые объекты

Для обеспечения удобства пользователей сайта используются cookies

Принять Отклонить
Подробнее