Продается дом 21х17м!

320 м² Общая площадь

20 соток Площадь участка

2015 Год постройки

Продается большой коттедж под отделку в д. Высокая Горка.

Почему этот дом стоит своих денег: 

  • Расположение: дом расположен на расстоянии около 20 км от МКАД по московскому направлению в д. Высокая Горка, на расстоянии 3 км от г. Смолевичи, в непосредственной близости новой оживленной магистрали Минск-Борисов. Из-за природного рельефа местности он изолирован от шума дороги, хотя находится всего в 400 метрах от нее. 
  • Участок: участок 0.2 га в частной собственности, правильной формы, угловой (соседи только с одной стороны). Перепад по высоте участка составляет не более 0.5 метра. 
  • Коммуникации: газ подведен к углу здания, по техусловию выделена мощность на бытовое электропотребление в размере 6 кВт., щиток смонтирован на границе участка. 
  • Архитектура и проект: дом стоит на ленточном монолитном фундаменте размером 21х17 метров, заглубленном на 1.2 метра. Стены возведены из газосиликатных блоков, перегородки внутри выполнены из кирпича и газосиликата. Крыша металлочерепица.

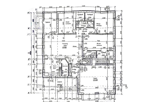
Согласно проекту вдоль дальней стены здания выделены две спальни размером по 22 м.кв с предусмотренными в них гардеробными площадью по 4.1 м.кв. , с общим для комнат санузлом площадью 6.2 м.кв. Там же расположена еще одна комната площадью 14.9 м.кв, которая имеет вход из большой гостиной (57.6 м.кв) и может использоваться как еще одна спальня или кабинет. Гостиная расположена в центральной части дома, имеет панорамное остекление и выход на террасу. Смежно с ней выделена еще одна спальня, площадью 28.2 м.кв с предусмотренным отдельным с/у (5.7 м.кв) и гардеробом (7.1 м.кв). Кухня имеет площадь 16.1 м.кв. Гараж размером 7х8 метром предусмотрен в фронтальной части здания для удобства использования. Высота потолков в комнатах более 3 метров.     Осуществлена разводка канализации по всем зонам. 
В доме установлены двухкамерные.  ламинированные в цвет кровли. окна ПВХ.   
Участок имеет небольшой уклон от дороги, что позволило обустроить в тыльной части здания полноценный цокольный этаж площадью около 75 м.кв. 

  • Развитая инфраструктура: до города-спутника Смолевичи, где расположена вся инфраструктура, от дома около 3 километров.  До Минска маршрутки и автобусы ходят с периодичностью 10-15 минут и дорога занимает не более 25 минут.

Подумайте над покупкой этого дома, цена которого меньше стоимости студии без ремонта в Минск-Мир. 

Этот объект можно купить в кредит, подробности уточняйте у специалиста по недвижимости.

Хотите продавать свою недвижимость так же эффективно? Узнайте подробнее о нашей услуге "Продавцу"

Новые объекты на Ваш Email

Подпишитесь и получайте ссылки на новые объекты

Похожие объекты

Фотография - Продается дом в ст Дубрава-Мапид
223 600 р. 79 000 $?

Продается дом в ст Дубрава-Мапид

СТ "Дубрава-Мапид"

Для обеспечения удобства пользователей сайта используются cookies

Принять Отклонить
Подробнее