





















1-комнатная квартира
Московский район Минск, ул. Громова, 46
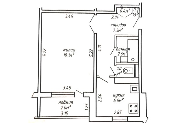
38.2 м² Общая площадь
18.1 м² Жилая площадь
6.6 м² Кухня
5 из 14 Этаж
1994 Год постройки
Панель Материал стен
1 -комнатная квартира с ремонтом: Малиновка, ул. Громова 46
Панельный дом 1994 год постройки. Квартира находится на 5м этаже многоэтажного дома. Окна выходят на юг.
«Улучшенный проект», большая площадь квартиры: 38.2 м2 и приятная высота потолков 2.63 м. Уютная жилая комната 18.1м2. Кухня 6.6м2 укомплектована всем необходимым. Раздельный с/у сэкономит время при утренних сборах, сантехника в отличном состоянии. Прихожая оборудована двумя шкафами-купе, что позволяет разместить одежду и обувь, не загромождая квартиру. Остекленная стеклопакетами лоджия 4м2 – дополнительная площадь для отдыха или хранения.
Ремонт: стены оклеены обоями, комбинированные потолки, на полу уложен линолеум.
Санузлы облицованы плиткой в потолок. Установлены стеклопакеты, которые избавят от шума с улицы и сохранят тепло в квартире.
Металлическая входная дверь. Общий тамбур большой площади позволит поставить велосипед или коляску и даст дополнительную шумо- и теплоизоляцию.
Отличная локация, Район обладает развитой обжитой инфраструктурой, всё необходимое находится в шаговой доступности: детская и взрослая поликлиника в шаговой доступности, 4 детские сада, 3 школы. Рядом парк им. Павлова, много зеленых зон и скверов, крупные торговые центры «Простор» и «Diamondд»
Хорошее транспортное сообщение. В 10 минутах находится станция метро "Малиновки" и быстрый выезд на МКАД. Рядом 3 остановки общественного транспорта.
Эту квартиру можно приобрести в кредит.
Поможем продать вашу квартиру для покупки этого варианта.
Звоните!
Хотите продавать свою недвижимость так же эффективно? Узнайте подробнее о нашей услуге "Продавцу" |
Новые объекты на Ваш Email
Подпишитесь и получайте ссылки на новые объекты
Похожие объекты