Пора расширяться!

3-комнатная квартира

Первомайский район Минск, Логойский тр-т, 8

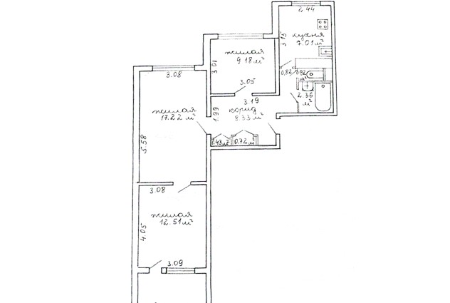
60.78 м² Общая площадь

38.91 м² Жилая площадь

7.01 м² Кухня

7 из 9 Этаж

1978 Год постройки

Панель Материал стен

3-комнатная квартира в г. Минск, Логойский тракт 8.
Жилой дом 1978 года постройки с удачным расположением. Квартира расположена на 7 из 9 этажей. Площадь по СНБ 60,78м2. Общая площадь 58,68 м2 Жилая площадь 38,91 м2. Включает в себя две изолированные комнаты площадью 9,18 м2 и 12,51м2. И одна проходная комната площадью 17,22м2. Стандартная кухня площадью 7,1 м2. Просторный коридор правильной формы площадью 9,48 м2. Раздельный сан/узел. Застекленная лоджия. Высота потолков 2,55 м. 
В кухне сделан свежий современный ремонт, встроенная кухня и техника. Стены выровнены и окрашены. На полу уложена плитка. Натяжной потолок.
По всей квартире на полу уложен паркет. Паркет в хорошем состояние, вам не надо его демонтировать и думать, что уложить на пол. По всей квартире установлены высококачественные двухкамерные окна ПВХ. Новая входная металлическая дверь. Наличие счетчиков на воду и свет.
Хорошие доброжелательные соседи. Тихий спокойный двор, детская площадка, есть место для парковки вашей машины.
Инфраструктура:
Удачное расположение дома. Удобный выезд на МКАД. Рядом с домом, в радиусе пару минут ходьбы можно найти абсолютно всё, что необходимо для комфортной жизни: остановка автобусов, троллейбусов и трамвая в 130 метров. Даже на общественном транспорте можно легко доехать в любую точку города Минска. Средняя школа №178. «Севастопольский парк» прекрасное место для прогулок всей семьей, занятием спортом и активным отдыхом. «Альфа – Банк», «Приорбанк». Большое количество продовольственных магазинов. Ближайшее станция метро, метро «Московская».
Звоните прямо сейчас!
Этот объект можно купить в кредит, подробности уточняйте у специалиста по недвижимости.

Хотите продавать свою квартиру так же эффективно? Узнайте подробнее о нашей услуге "Продавцу"

Новые объекты на Ваш Email

Подпишитесь и получайте ссылки на новые объекты

Для обеспечения удобства пользователей сайта используются cookies

Принять Отклонить
Подробнее