






























1-комнатная квартира
Московский район Минск, ул. Щорса, 3
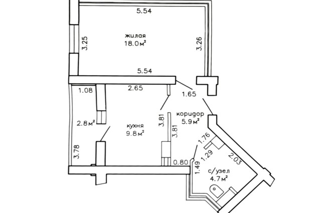
41.2 м² Общая площадь
18.0 м² Жилая площадь
9.8 м² Кухня
7 из 7 Этаж
2008 Год постройки
Каркасно-блочный Материал стен
Продаётся большая и уютная однокомнатная квартира на Грушевке.
В этой квартире был только один собственник, жила молодая пара, которая строила эту квартиру под себя и для жизни, поэтому квартира:
Находится на последнем этаже 7-ми этажного каркасно-блочного дома 2008 года постройки, при этом в доме предусмотрен большой технический этаж сверху, который предохраняет квартиру от различных проблем последних этажей, но сохраняет тишину и спокойствие, ведь сверху нет соседей.
В квартире современная планировка: просторная жилая комната 18 м2: есть место для отдыха, отдельная уголок для работы, большая двух спальная кровать и даже остаётся место, чтобы расстелить коврик и позаниматься спортом. Большая кухня 9.8 м2, где с комфортом может готовить хоть несколько человек сразу. На кухне удобный выход на лоджию 2,8 м2. Вместительный коридор 5.9 м2 и просторный санузел 4.7 м2. Высокие потолки h=2,72 м. Квартира оборудована бойлером, проведен интернет (оптоволокно).
В квартире сделан современный ремонт в светлых тонах с использованием качественных материалов и наполнением новой мебелью и техникой Bosсh! Полы – ламинат, плитка (в санузле и на балконе полы с подогревом), сантехника в отличном состоянии, потолки - гипсокартон со встроенным освещением, стены выровнены, полностью заменены электрика, розетки, выключатели, сантехнические трубы. Все окна – ПВХ стеклопакеты. Лоджия облагорожена (застеклена также стеклопакетами, утеплена, проведено освещение). Встроенная кухня оборудована посудомоечной машиной Bosch, варочной поверхностью и множеством мест хранения. Большой встроенный шкаф в коридоре. Двойная входная дверь – снаружи металлическая!
Квартира угловая, поэтому есть только один сосед сбоку, с которым квартира делит совместный тамбур, где много свободного пространства и висят шкафчики для хранения обуви. Дом семиэтажный, поэтому лифт всегда свободен и его не нужно долго ждать, как это бывает в многоэтажном доме. Даже в пиковые часы вы будете ездить одни. Лифт очень большой, считается грузовым, поэтому у вас не будет проблем с переездом и доставкой крупногабаритных товаров.
За 8 лет жизни лифт ломался трижды и чинился в тот же день. Дом теплый, отопление осенью включается сразу с наступлением холода. Хорошая звукоизоляция, соседей не слышно вообще. Закрытый двор въезд в который через шлагбаум (по номеру телефона только для жильцов). Поэтому парковочные места жильцов останутся парковочными местами только для жильцов.
Так же имеется подземный паркинг с возможностью докупить парковочное место или взять в аренду. Так же возле дома много свободных парковочных мест: рядом с двором вдоль улицы, рядом с двором есть бассейн, там очень много парковочных мест. Проблем с парковкой никогда не бывает. По периметру дома установлена система видеонаблюдения.
Мусорный бак находится возле подъезда и закрыт на ключ, который есть только у жильцов этого подъезда. Никаких неприятных запахов во дворе от мусорки и ворон вокруг мусорки не бывает. Мусор вывозят регулярно.
За состоянием дома и придомовой территорией следит созданное товарищество собственников «Новая Грушевка 3». Вид на зеленую зону (никаких вам окна в окна). С открытыми окнами можно ходить даже голыми.
Метро и проспект Дзержинского в 5 минутах ходьбы, при этом дом находится в тихой зоне и окна не выходят на дорогу. Поэтому всегда очень тихо, никогда не будет слышно мотоциклистов и летом без проблем можно спать с открытыми окнами. Эта квартира находится в развитом районе в центре города, но сохраняет в себе тишину, спокойствие, которые сложно найти в центре.
Летом никогда не отключают горячую воду, потому что у этого дома собственная котельная. А если проводят какие-то запланированные работы и нет горячей воды, то в ванной есть бойлер, который быстро нагревает много воды. Подогреваемые полы в ванной и на балконе, поэтому вся постиранная в большой стиральной машинке одежда быстро сохнет.
Через дорогу от дома кофейня, косметология высокого уровня, пункт выдачи озон и вайлдберис. Через другую дорогу - кафе «конференция». Бассейн со спортзалом прямо рядом с домом. Большой аутлет в 5 минутах ходьбы. Ближе к метро несколько магазинов «Мила», много магазинов с мясом, кафе и парк со спорт площадкой. Возле метро так же много кофеен, магазинов, студий пилатеса, йоги, реабилитационный центр и многое другое.
До станции метро Грушевская 5 мин пешком. На метро до центра ехать 10 мин. До остановки на железнодорожной улице 2 минуты, там ходят троллейбусы до вокзала (9 мин) и до центра города (15 мин). Пешком до Немиги 30 мин.
Эта квартира никогда не сдавалась, потому что строилась для жизни, для удобной жизни без каждодневных энергетических затрат и приспособления под неудобства. В этой квартире не только приятно жить, но и легко.
И, кстати, у нас чистая продажа! Ключи в день сделки!
Эту квартиру можно купить в кредит, подробности уточняйте у специалиста по недвижимости.
Хотите продавать свою недвижимость так же эффективно? Узнайте подробнее о нашей услуге "Продавцу" |
Новые объекты на Ваш Email
Подпишитесь и получайте ссылки на новые объекты
Похожие объекты