Добротный дом в д. Медухово

Минская область д. Медухово, ул. Тихая

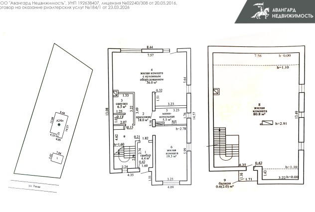
177.5 м² Общая площадь

24 сотки Площадь участка

2023 Год постройки

 

Продаётся добротный дом индивидуального дизайна и планировки в 25 км от Минска, в 10-ти мин от МКАД. Дом впечатляет, высокие потолки, просторный, много воздуха и света, а продуманная до мелочей планировка позволит создать комфорт и уют любой семье, необходима лишь внутренняя отделка, которая реализует все пожелания нового владельца. 
Общая площадь дома 177 кв.м. из которых 136 кв. м.-жилая.
Стены надёжные и крепкие, выполнены из керамзитобетонных блоков, снаружи утеплены, крыша – металлочерепица. На двух уровнях дома расположено несколько комнат различного функционального назначения – гостиная, жилые комнаты, просторный коридор и лестничный проём, 2 сан.узла, пространство второго этажа – свободная планировка (предусмотрено на 3-4 комнаты, материалы для зонирования в наличии, входят в стоимость дома). В доме просторная кухня с выходом в гостиную, хоз.блок - топочная. Проделаны основные строительные и штукатурные работы, электрика разведена по всему дому, подключена местная канализация (переливная, большой объём), газовое отопление, новое оборудование и водонагреватель, центральное водоснабжение (вода очень чистая, есть вывод на улицу). На 1-м этаже тёплые полы – проведены по всем требованиям технологического процесса, качественная стяжка. Окна ПВХ, с выходом на восточную, юго-восточную и южную стороны, балконная дверь на 2-м этаже. 
Зелёная зона, чудесный свежий воздух, участок в частной собственности. Дом расположен на возвышенном месте, на территории всегда чисто и сухо, после таяния снега и дождей не затапливает. На участке заложен небольшой плодовый сад, периметр участка имеет добротное ограждение. Просторный гараж, ворота подъёмные, пол забетонирован, электричество проведено. 
Прекрасные подъездные пути, очень хорошие соседи.
Ждём покупателей, счастливых владельцев достойного объекта!

3. Краткое описание для Realt.by до 750 знаков (с пробелами)  🡫
Продаётся добротный дом в 25 км от Минска, в 10-ти мин от МКАД.
Общая площадь дома 177 кв. м. из которых 136 кв. м.-жилая.
Стены надёжные и крепкие, выполнены из керамзитобетонных блоков, снаружи утеплены, крыша – металлочерепица. На двух уровнях дома расположено несколько комнат различного функционального назначения – гостиная, жилые комнаты, 2 сан.узла, пространство второго этажа – свободная планировка (предусмотрено на 3-4 комнаты, материалы для зонирования в наличии, входят в стоимость дома). Проделаны основные строительные и штукатурные работы, электрика разведена по всему дому, подключена местная канализация (переливная, большой объём), газовое отопление, новое оборудование и водонагреватель, центральное водоснабжение.

Хотите продавать свою квартиру так же эффективно? Узнайте подробнее о нашей услуге "Продавцу"

Новые объекты на Ваш Email

Подпишитесь и получайте ссылки на новые объекты

Похожие объекты

Фотография - Продается просторный дом в деревне Комсомолец 25км от МКАД
408 900 р. 145 000 $?

Продается просторный дом в деревне Комсомолец 25км от МКАД

Минский р-н, д. Комсомолец, ул. Комсомольская

Для обеспечения удобства пользователей сайта используются cookies

Принять Отклонить
Подробнее